ID CP2881316

Cladire birouri / activități medicale - 1032 mp utili - semicentral

ID CP2881316

2,100,000 € (negociabil) + 21% TVA

Spațiu de birouri de vânzare
Podu Ros, Iasi
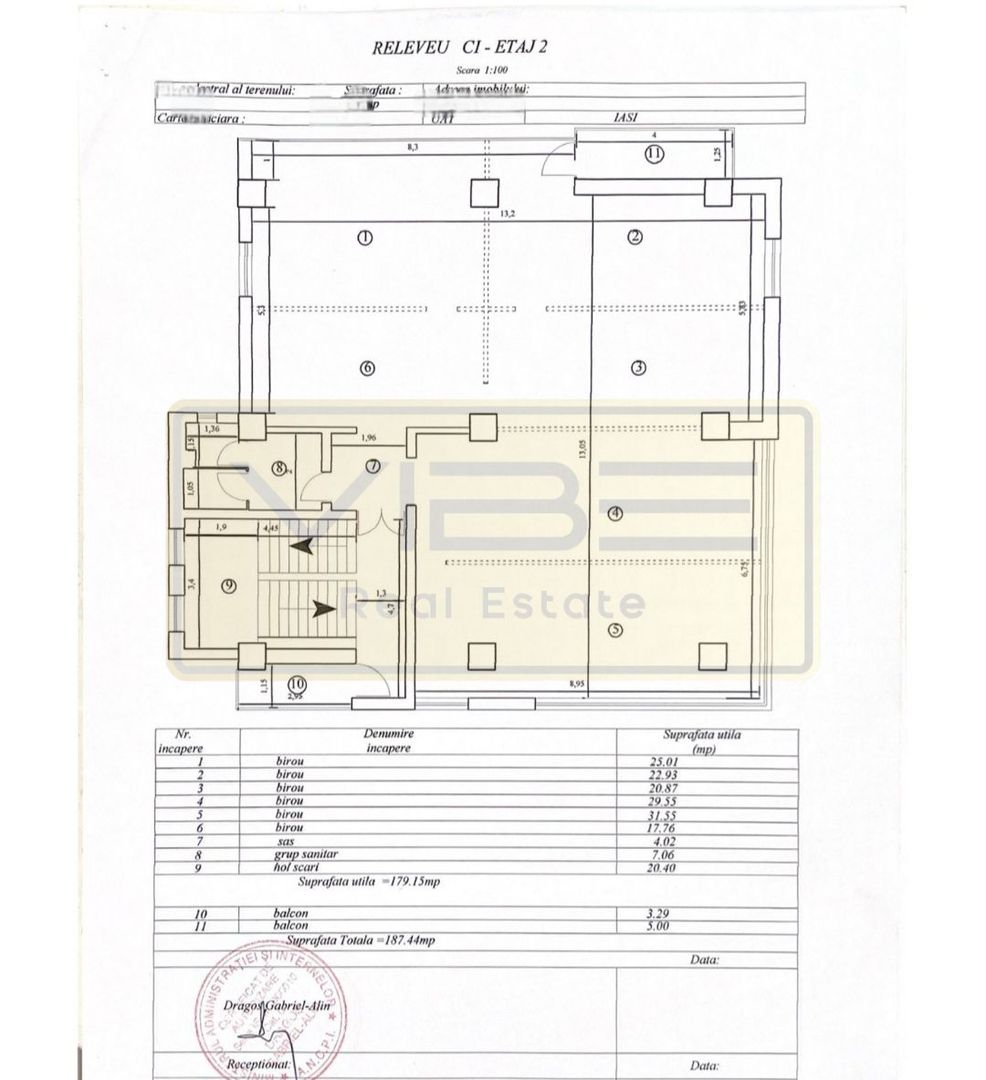
1,032 mp
2007

Clădire de birouri / spatii medicale , de vânzare

Se oferă spre vânzare clădire multifuncțională, ideală pentru activități medicale, birouri, IT, consultanță sau servicii, cu regim de înălțime P + 4 etaje + terasă.

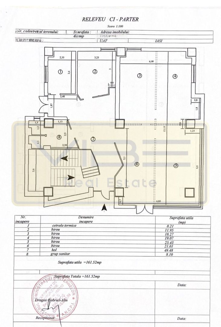
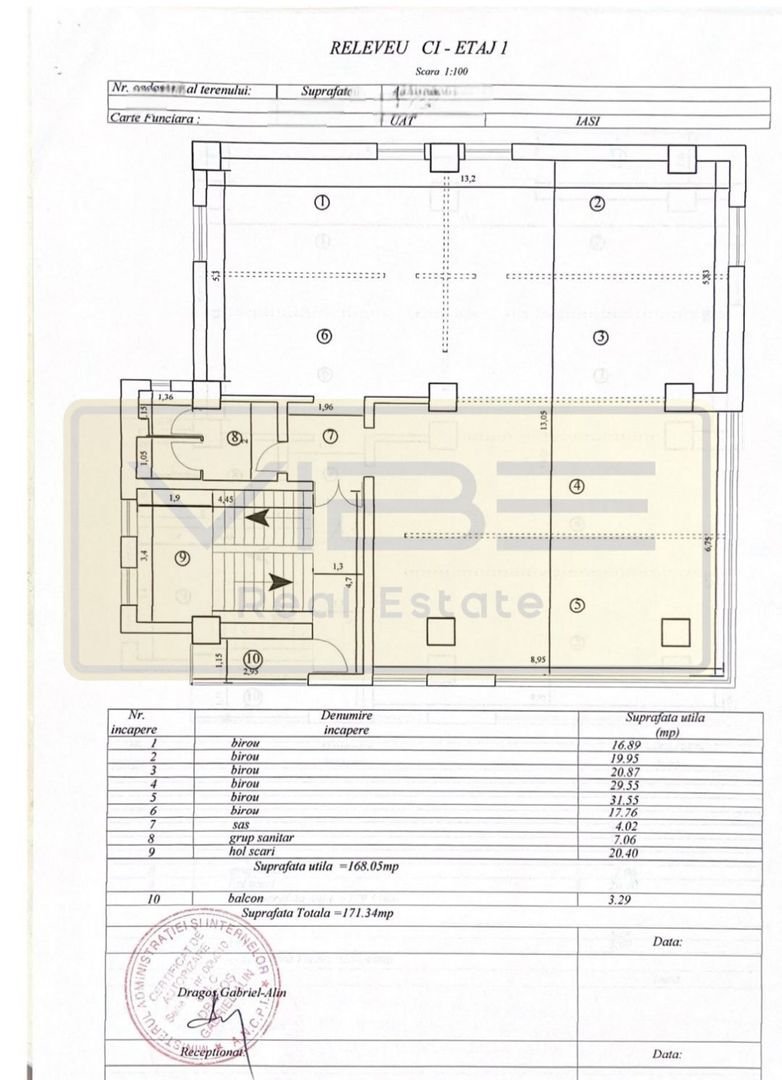
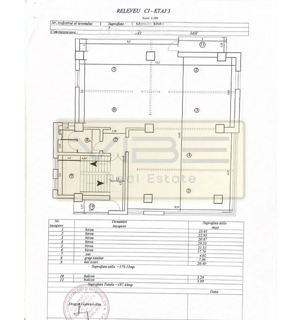
Imobilul are o suprafață utilă totală de 952,72 mp, o suprafață construită de 1048 mp și este amplasat pe un teren de 407 mp, cu amprentă la sol de 196 mp.

Clădirea este pretabilă pentru activități medicale precum cabinete de consultații, clinici cu internare de zi sau internare pe termen lung, centre de diagnostic sau recuperare, cu mențiunea că este necesar montajul unui lift pentru conformitate și accesibilitate. De asemenea, este potrivită pentru activități de birou, IT, consultanță, firme de servicii sau sediu de companie.

-Dispune de aproximativ 8 locuri de parcare, situate în fața imobilului, pe terenul aflat în proprietate.

-Clădirea este complet funcțională și dotată cu:

-2 centrale termice

-Sistem complet de încălzire și răcire

-instalații sanitare și electrice complet funcționale

Este inclus in pret si o parcela de teren de aproximativ 400 mp, ce prezinta o constructie la momentul de fata de aprox 80mp, racordata la toate utilitatile si complet functionala, ideala pentru activitati precum : (RMN, CT, spații medicale, etc.). Lotul de teren vizeaza si aprox 10 locuri de parcare cu posibilitate de crestere.

MENTIUNE: se poate scoate PUZ pentru constructie P+3.

Zona oferă acces facil catre centrul orașului. Potionat la doar cateva minute de Piata Nicolina, Lidl Dedeman cat si statia de autobuz si tramvai.

Preț de vânzare: 2.100.000 euro + TVA.

Se poate face atat vanzare cat si cesiune de SRL cu tot cu bunurile imobile mentionate mai sus.

Cladirea a fost inchiriata pana recent la o multinationala cu un pret mediu de 9 euro/ mp+ tva.

Proprietatea reprezintă o oportunitate solidă de investiție, cu multiple opțiuni de utilizare și dezvoltare ulterioară.

Citește mai mult

  • Tip imobil
    Clădire birouri
  • Etaj
    Parter, 1, 2, 3, 4, Mansarda
  • Clasă birouri
    B
  • Număr camere
    8
  • Număr băi
    7
  • Suprafață construită
    1,133 mp
  • Număr terase
    1
  • Suprafață utilă
    1,032 mp
  • Disponibilitate
    Imediat
  • Suprafață minimă
    1,032 mp
  • Suprafață totală birouri
    1,032 mp
  • Compartimentare spațiu
    Parțial compartimentat
  • Parcări suprafață
    350
  • An construcție
    2007
  • Construcție nouă
    Da
  • Număr etaje clădire
    5

Facilități

Afișare logo pe clădire
Cameră server
Centrală termică
Contorizare separată
Control acces securizat pe bază de cartele
Control al accesului pe zone
Control individual AC pentru fiecare zonă de birou
Detectoare de fum/incendiu
Gresie
Grupuri sanitare amenajate și utilate
Internet
Mochetă
Parcare deschisă
Parchet
Recepție
Server room cu rack, ventilație, control acces
Sistem de alarmă
Sistem de ventilație
Stație de autobuz în apropiere
Stație de tramvai în apropiere
Tavan fals
Telefon
Vedere panoramică
Antonio Cojocaru
Senior Broker Imobiliar

0787338844


Solicită chiar acum o vizionare
Telefon
Sună acum Solicită vizionare
Necesare:

Site-ul nu poate funcționa corect fără aceste cookie-uri. Vezi cookie-urile

Statistică:

Strângem statistici anonime despre voi, vizitatorii unici, pentru a vă îmbunătăți experiența dumneavoastră. Vezi cookie-urile

Marketing:

Pentru a ne promova mai eficient serviciile noastre, folosim cookies pentru a vă identifica și a vă oferi proprietăți și servicii personalizate. Vezi cookie-urile

Acest site folosește cookies, află detalii. Alege ce tipuri de cookies dorești să permitem: